| |
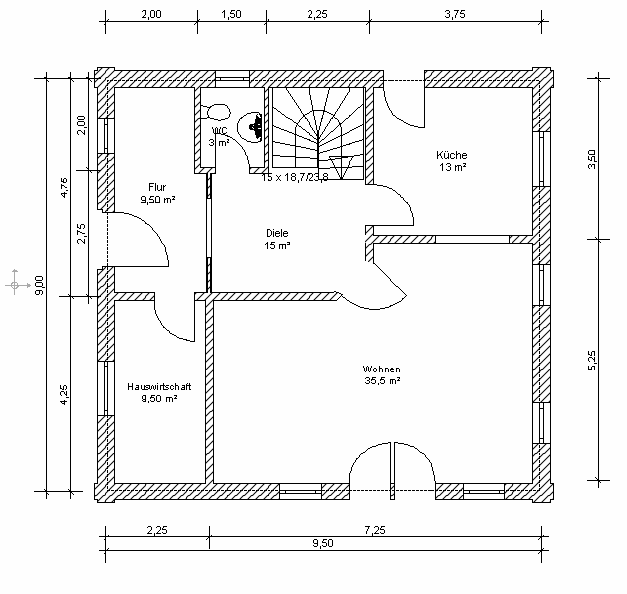
| Erdgeschoss |
ca. 76,5 m² |
| Wohnzimmer: |
35,5 m² |
| Küche: |
13,0 m² |
| Hauswirtschaftsraum: |
9,5 m² |
| Diele: |
15,0 m² |
| Windfang: |
9,5 m² |
| Gäste-WC: |
3,0 m² |
|

|
| |
| Dachgeschoss |
ca. 60,0 m² |
| Schlafzimmer: |
14,0 m² |
| Kind 1: |
10,0 m² |
| Kind 2: |
14,0 m² |
| Bad: |
10,0 m² |
| Flur: |
12,0 m² |
|

|
| |
|
Zum Vergrößern bitte auf die Vorschaubilder klicken! |